ishiiharuki

《木(主)》


English ver. is here


石井開

垂木、合板、壁紙、漆喰
屋外 450mm×450mm×2520mm
屋内 450mm×450mm×2430mm


2人展〈スケール〉 @Gallry表参道ROJI
2025年 7月 18日 - 7月 23日
秋谷匠太朗 + 石井開

『1.ギャラリーが白くあり続けようとすること、 2.「柱」に支えらていることと「柱」を支えること、 3.「柱」のあいだの空間、 の3つについて、2つのボリュームの制作を通じて考えてみたい。
このボリュームは「柱」未満のものとして、しかし木で構成されていることは確かなので「木(主)」と名付けられている。』

《木(主)》について


今、このギャラリーには柱のような見た目をしたものが2つ置かれています。この、柱のようなものを木(主)と呼ぶことにします。

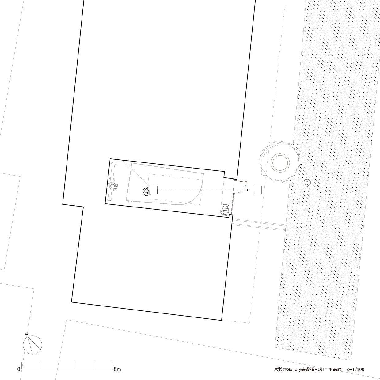
Gallery表参道ROJI 平面

どんな形や大きさのギャラリーであれ、鑑賞者としてはいつだって人目を気にせず作品に向き合いたいものです。
2 つの木(主)はそうした、ギャラリーを訪れる鑑賞者と在廊者、外を通り過ぎる人々との距離を調整するものとしてあります。

ギャラリー 展開図

木(主)を空間を構成する方のものとして位置付けたいため、周囲と同じような仕上げとしようと思います。
ですが、壁や天井をみわたすと、それぞれの面が異なる姿をしています。

木(主) 立面

そこで、木(主)も同じように、各面にそれぞれ異なる仕上げを施すことにしました。

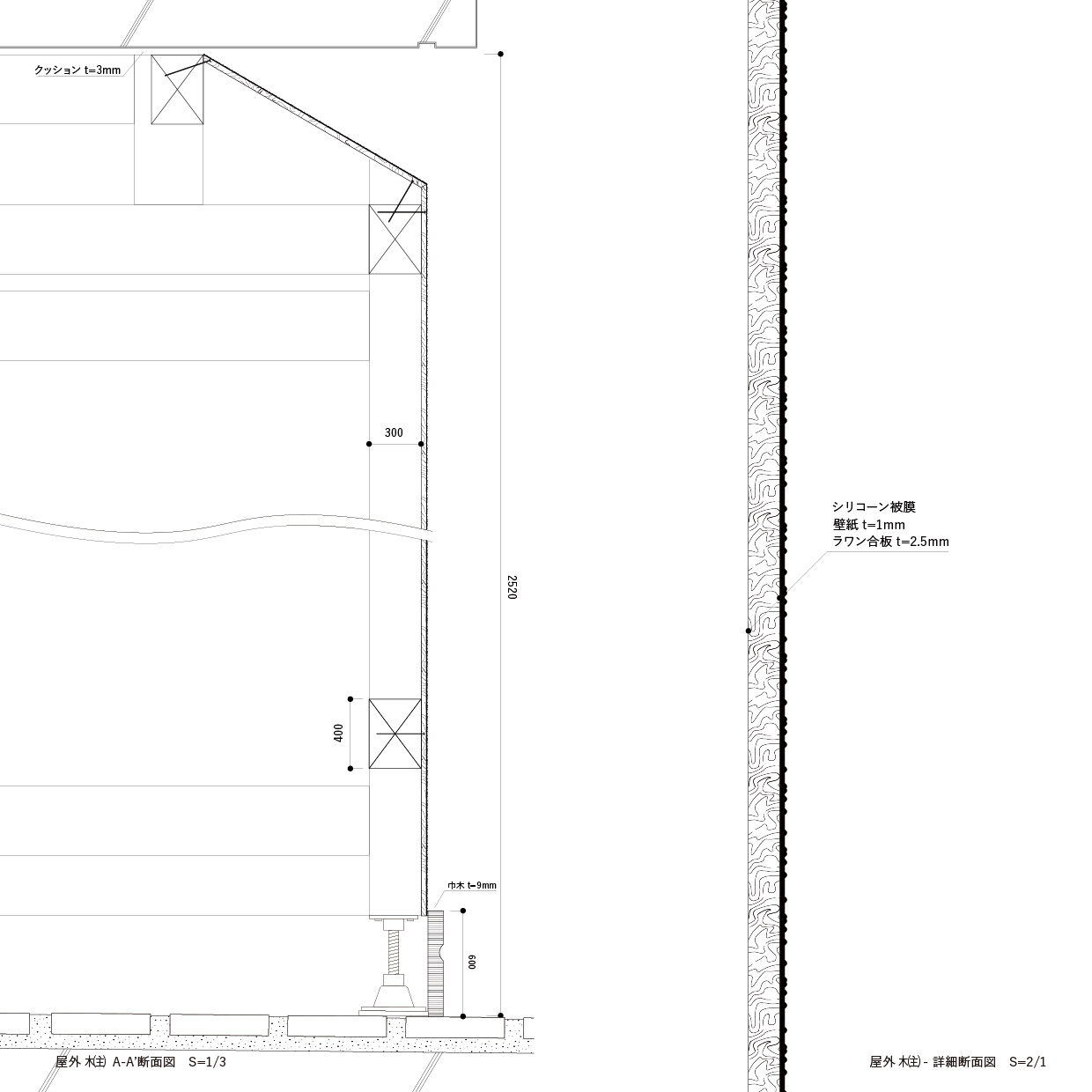
屋外-木(主) 詳細断面

扉の前にある木(主) は、既存の壁にならって、4面それぞれの壁紙を貼ります。
なぜ壁紙かというと、ギャラリーを手前に延長することで、奥行きを作り出せないかと思ったからです。

屋内-木(主) 詳細断面

室内の柱も仕上げに壁紙を貼ることを考えていたのですが、こちらは展示空間の中央付近に位置しているため、どうしても既存の壁紙に対して新しさが際立ってしまいます。 そこで、壁紙に見えそうで見えない仕上げにしようと壁紙の凸凹を模して湿式の材料で作ることにしました。そのため、奥の柱の仕上げは壁紙の偽物です。
が、本物の漆喰でできています。

屋内-木(主) 断面 + 屋外-木(主) 立面

さて、奥の木(主)に 1 箇所穴が空いています。そこからは何が見えているのでしょうか。

表参道ヒルズ前 平面

木(主) 配置図@表参道

木(主) 配置図@Gallery表参道ROJI

木(主) 配置図@Gallery表参道ROJI

木(主) 平面@Gallery表参道ROJI

今、このギャラリーには柱のような見た目をしたものが2つ置かれています。
この、柱のようなものはスケールの異なる場所をみる尺度としても機能しています。