ishiiharuki

お仕舞いの向こうへ / Beyond the Closets


2024 November
第51回 日新工業建築設計競技
テーマ《never ending house》 2等


51st Nissin Kogyo Architectural Design Competition
Theme《never ending house》2nd Prize


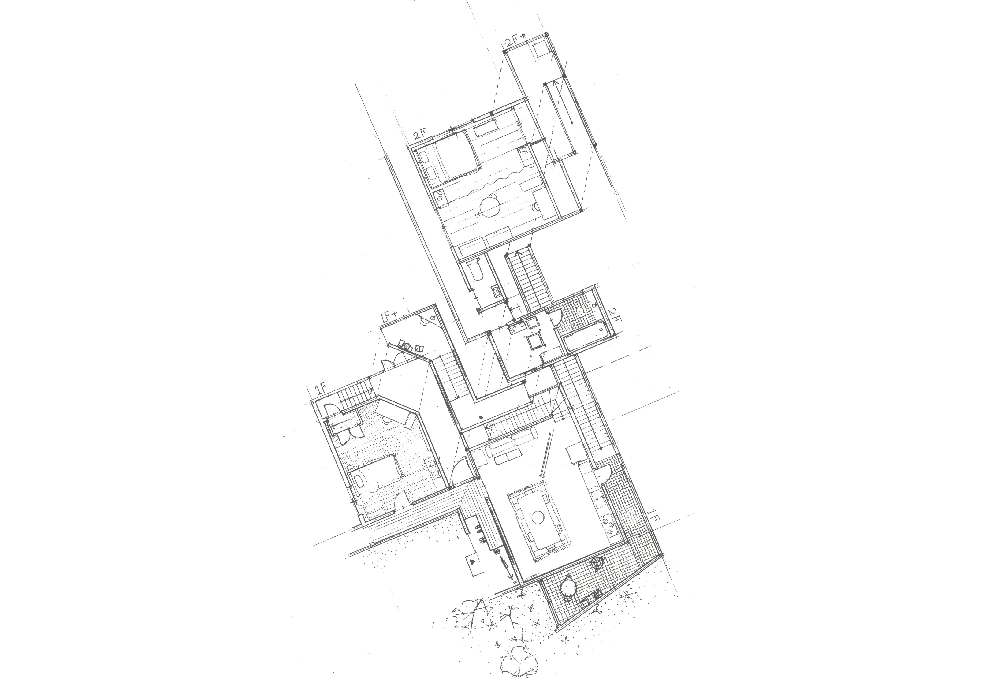
料理が終わればキッチン下に調味料を片すように、春が終われば毛布を押入れに戻すように、仕舞うという 行為はさまざまな時間尺度のおわりを意味する。また、仕舞うために設えられた扉はその先の空間的なおわ りを私たちに示唆する。
一方【扉】は、領域を隔てるものであると同時に向こう側の空間的広がり、あるいは物語の始まりを示唆す る存在である。故に、扉の寸法や位置、装飾と、扉の意味の分別がまだついていなかった頃は、押し入れや 床下点検口の中を覗いてはその先にあるはずのない空間の広がりを見ようとした。真っ暗で、人の気配のし ない匂いがする家の端っこに誘われて、あるかもしれない展開に思いを馳せた。
そうした仕舞いの扉の先、同士が住宅の背後で出会う。この住宅においておわりを意味する扉は、同時にど こかへの始まりを匂わせる。そして、どこかへの期待は肥大化していくと、よく知るところへ戻っていく。

Just as condiments are put away beneath the kitchen once cooking is done, or blankets returned to the closet when spring ends, the act of putting things away signifies the conclusion of various temporal scales. The door designed for storing, in turn, suggests the spatial ending that lies beyond it.
At the same time, a door is not only a partition between realms but also a sign of spatial expansion on the other side, or even the beginning of a narrative. When one has not yet learned to distinguish between the physical dimension or decoration of a door and its meaning, one may peer into closets or floor hatches in search of an imagined expanse beyond. Drawn toward the dark, uninhabited corners of the house, one would wonder about the possibilities that might unfold there.
It is beyond such storage doors that things encounter each other behind the dwelling. In this house, the door that signifies an ending simultaneously hints at a beginning elsewhere. And when such expectation of “elsewhere” grows larger and larger, it eventually circles back to the familiar.